San Lorenzo House by Mike Jacobs Architecture
This modern L-shaped residence designed in 2012 by Mike Jacobs Architecture for a client from LA is located in the town of San Lorenzo.















Description by Mike Jacobs Architecture
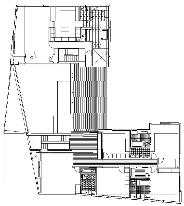
Located at the end of a canyon road, the San Lorenzo House responds to and engages its surrounding landscapes: an interior private garden to the south and the manicured fairways of a golf course to the north.
Following a careful zoning study, two interlocking “L-shaped” formally organize the house: the first “L-shape”, an open and transparent enclosure and veranda (steel/glass), incorporates the communal living spaces of garden, pool, living rooms and theater; the second “L-shape,” an opaque enclosure (stucco/cedar), holds the basic form of the house and incorporates the private bedrooms and service spaces.
A large open living space is central to the organization of the house.
Pocket sliding doors open the south wall to the garden and north facing windows unfold to view the fairways create direct connections to the exterior.
These large openings passively cool the house and draw fresh air deep into the residual spaces to naturally ventilate the home.
Social exchange is expressed by section. An elongated formal stair links the terraced living spaces to the exterior and connects to the theater below.
A pair of secondary flanking stairs provide access from the residual private rooms and service areas. These multiple points-of-entry produce a constant interchange between the family unit.







Visit Mike Jacobs Architecture
- by Matt Watts




















