Linhares Dias House by DOMO Arquitetos
This modern single family house designed by DOMO Arquitetos is located in a residential area site close to the Paranoa Lake in Brasília, Brazil.














Description by DOMO Arquitetos
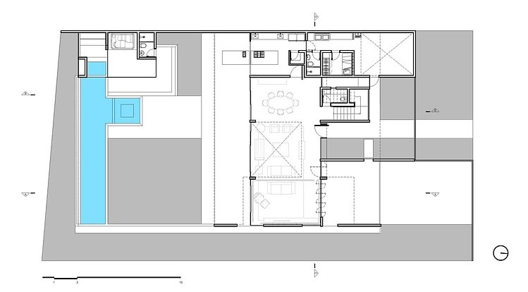
Searching the maximum integration for the social areas of the house we decided to put all the program under one big roof. The roof together with the two side walls forms a “portico” that shades the interiors and part of the exterior spaces of the house.
The internal spaces are distributed in different positions, either advanced or retreated, alternated with empty spaces that give depth and texture to its volumetric composition. To reinforce the unifying condition of the roof we have clad it internally with natural wood, which is visible from almost all the internal spaces.
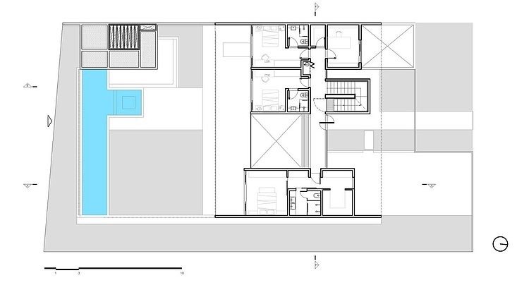
The bedrooms located in the 2nd floor were separated by an internal void and connected by a suspended open corridor over the living room, originating different relations in a double-height ceiling space with views both to the street and to an internal indoor “patio”. The staircase has a strong presence in the main façade, it projects itself towards the street and crosses the main roof, giving access to an open space on the roof for sightseeing.





















