East Bay House by MacCracken Architects
Modern ranch style residence designed in 2010 by MacCracken Architects situated Livermore, California.
















Description by MacCracken Architects
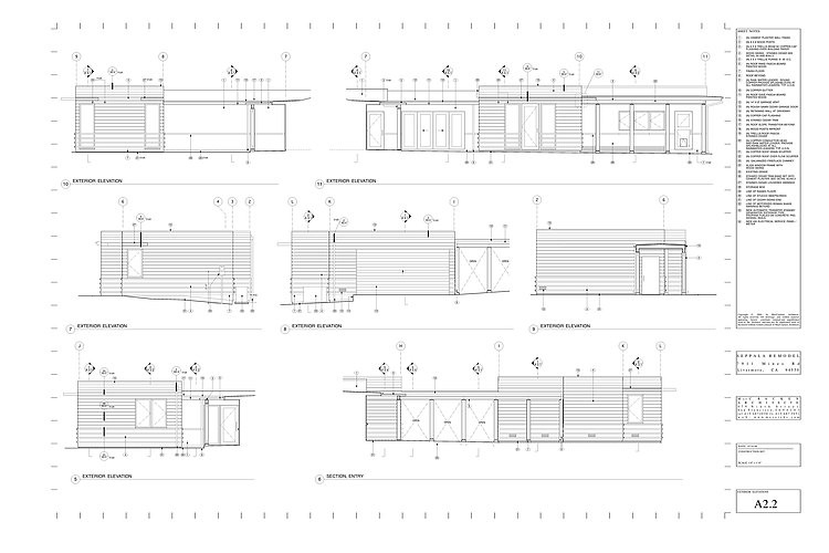
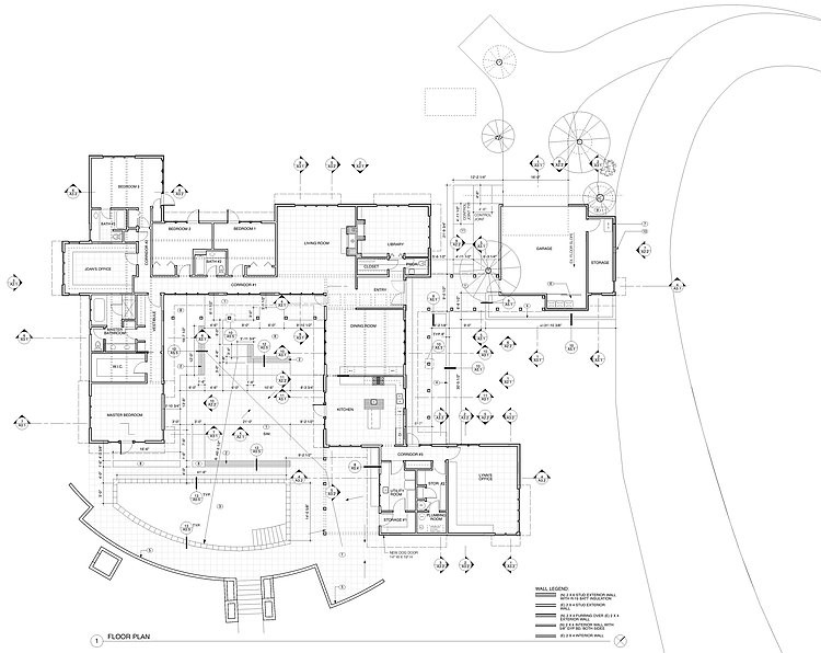
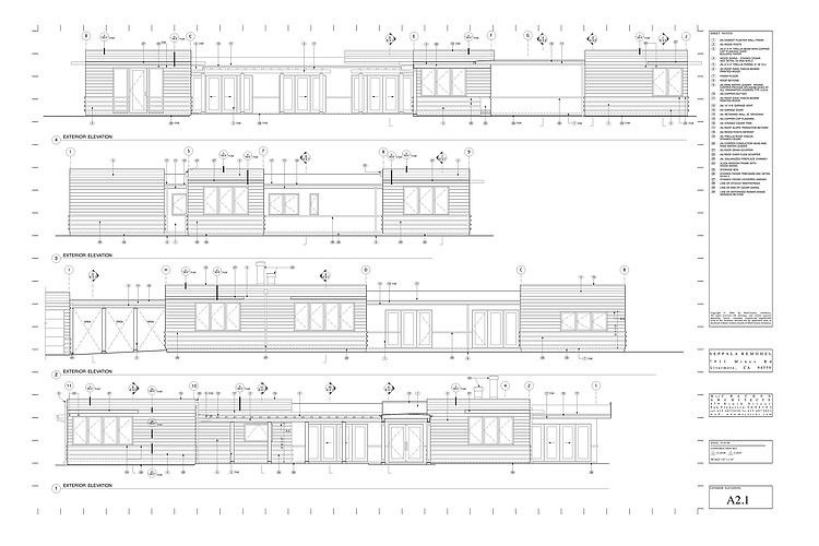
This project is essentially a new residence built on the foundation of an existing U shaped California ranch style home. The building layout, room sizes, window placement and eave lines all contributed to a feeling that the magnificent views of the surrounding hills were not exploited.
The new design presents spacious volumes with tall wood windows and doors allowing visual access to horizon, sky and hillsides in the foreground and distance. It consists of five new tall articulated wood boxes, which are an expression of important interior spaces within the building. They are connected by slightly lower roof and ceiling sections with trellis an walls of integral color plaster.























