Mosh House by Foong + Sormann
Designed in 2011 by Foong + Sormann, this minimalist single family residence is situated in Elwood, Victoria, Australia.














Description by Foong + Sormann
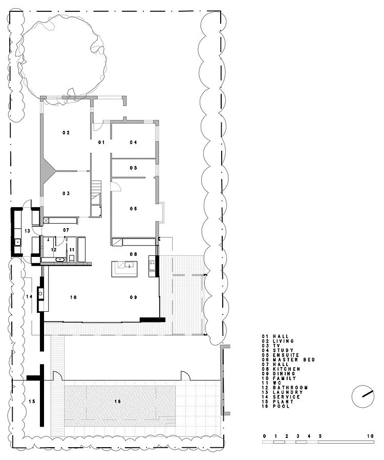
The extension to the Mosh House is an assembly of simple forms designed to embrace the outdoors.
The spirit that we wanted to instil was the fun and glamour of the Case Study Architects, particularly Pierre Koenig and Craig Ellwood, with influence from Mies van der Rohe and Tezuka Architects.
We worked with minimal, clearly defined key elements knowing that the clients would appreciate the clarity and lack of clutter.
We mitigated the distinction between inside and out through the use of materials, continuous forms, glass doors sliding behind walls and discreet junctions. With the doors open, the defined room becomes an open shelter.



















