Cabin 192 Transformation by Daniel Canda & Asociados

Cabin 192, a house in Los Cardales, Argentina, was transformed by Daniel Canda & Asociados in 2023. The project involved retaining the existing brick volume and replacing its gable roof with a flat, metal-supported one to add new bedrooms. Internally, walls were removed to create an open layout and a central concrete structure. Stone and glass were used to differentiate the volumes, prioritising a fluid, simple interior in contact with nature.

Modern two-story home with glass walls, brick exterior, and tall chimney surrounded by trees.

Cabin 192 Renovation in Argentina

Cabin 192, designed by Daniel Canda & Asociados, transforms a suburban home in Los Cardales, Argentina. Initially constructed fifty years ago, the house no longer met its original purpose, prompting a decision between a complete rebuild and a careful transformation. Opting for the latter, the architects focused on refunctionalizing an existing structure rather than replacing it, guiding the design process from the outset.
Spacious, modern interior with a striking steel staircase and cozy living area.

Modifications to the Existing Structure

The selection was a brick volume with a gable roof, organised in a square plan of nine by nine metres, complemented by two adjacent service volumes. Throughout the renovation, the original exterior walls served as a spatial boundary. Within this frame, interior walls on the ground floor were removed and replaced with a central concrete support, allowing for flexibility and a fluid spatial flow.
Striking architectural features, including a dramatic metal staircase, modern furniture, and natural elements.

To expand the upper floor, the gable roof was replaced with a flat one, supported by a light metal structure, offering a transparent glazed box. This renovation facilitated the addition of bedrooms and a bathroom, aligning with client requirements and expanding functionality.
A modern work nook with concrete walls, wooden cabinetry, and a swivel chair.

Interior Spatial Organisation

Inside, an open and flexible layout defines the space. On the ground floor, the central concrete core houses a bathroom and organises subspaces – kitchen, dining, home, and living – around it. Upstairs, structural corridors accommodate the staircase and additional bathrooms, while floor-to-ceiling furniture delineates the rooms, ensuring the layout remains adaptable.
Warm, modern interior with ample natural light, metal shelving, and a cozy reading nook.

Material Palette and Design Approach

To emphasise the main volume, a stone cladding matching the dimensions of the exposed brick was chosen, providing a sturdy base for the glazed box above. Supporting volumes, both in exposed brick, were united using a grey colour palette, ensuring cohesion across the project.

The interior emphasises fluidity, simplicity, and minimalism, with wood and concrete as the primary materials. This aesthetic approach aims to create a simple home, marked by austerity and a close connection to nature.

A modern, minimalist living room with large windows overlooking a lush green yard.

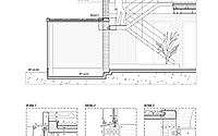
Constructively, the project features a double-skin design with a ventilated air chamber maintaining the original wall thickness, enhancing thermal efficiency. Tempered glass with solar treatment and hermetic double glazing provide thermal and solar protection while preserving transparency and extending visual connections.
Spacious bedroom with floor-to-ceiling windows showcasing lush outdoor views. Minimalist decor.
Daniel Canda & Asociados’ design aligns with the essence of a cabin – simple, temporary, and small, capturing a balance between architecture and the natural environment. Named Cabin 192 after the plot number, the project reflects a respectful engagement with existing structures, extending their life and functionality through thoughtful design.
Modern two-story house with glass walls, pool, and lush green surroundings.
Sleek modern design with large glass windows, dark wooden panels, and a prominent chimney.
Modern home with sleek design, large windows, and a pool in a lush, wooded setting.

Photography courtesy of Daniel Canda & Asociados
Visit Daniel Canda & Asociados

- by Matt Watts

Tags

Gallery

Get the latest updates from HomeAdore

Click on Allow to get notifications