Wij_land by Space&Matter Fosters Sustainable Community Living
Space&Matter created the wij_land housing in Amsterdam, Netherlands in 2023. This self-build collective focuses on sustainable, community-oriented living. The design includes 26 varied homes and five communal spaces, promoting sharing, diversity, and sustainability.

Collective self-build living
Space&Matter conceived wij_land in Amsterdam as a collective self-build centered on sustainable, community-oriented living. Initiated by Mireille and Daniël, the project brings together a diverse group of residents with the aim of creating a climate-adapted residential building. Located in Centrumeiland, it houses 26 homes and five communal spaces.

Principles of sharing, diversity and sustainability
Residents share resources such as tools, cars and spaces, promoting sustainability and connection. The building conserves rainwater, uses solar panels and incorporates a ground-coupled heat exchanger for energy-efficient living. It features durable, low-maintenance materials. As a not-for-profit venture, it invests in high-quality materials and communal spaces.

-->
Diverse housing community
The group prioritizes diversity, offering homes from 52 to 130 square meters. This helps to accommodate varied residents, including young and old, large and small families. Sharing allows for reduced storage, making it affordable for people on entry-level and middle incomes. The resulting mini-society includes diverse nationalities and backgrounds.

Co-creation Design Process
Space&Matter and Common City facilitated workshops to discuss design, sustainability and community living with future residents. A unique form of cohabitation was co-created, balancing privacy and collectivity. The design encourages informal gatherings and lively meetings in common spaces.

Common spaces for social interaction
The residents developed five shared spaces, including a garden, a commercial area, a guest room and a roof terrace with an adjacent orange grove. These spaces promote social cohesion in Centrumeiland and are available for rent in the neighborhood, helping to maintain the building and reducing service costs.

-->
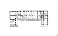
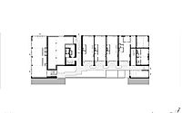
Various and unique housing
Residents chose between housing types such as the maisonette with garden and the live-work studio, according to their needs. Individual preferences influenced the dimensions of the window frames, the edges of the façades, the balcony plans and the floor plans, giving rise to diverse homes that reflect the residents themselves.





Photography by Marcel van der Burg
Visit Space&Matter





















