BA House by BAK Arquitectos
Amazing contemporary home located in Villa Udaondo, Argentina, designed in 2010 by BAK Arquitectos.



















Description by BAK Arquitectos
The Place
This is a field in a small condominium of 16 lots located in an area of the Buenos Aires Province, traditionally of farms, that with the trace of the Western Highway has been gradually transforming into a permanent housing place. Located in front of the grounds of the National Institute of Agricultural Technology (INTA), this location has long-term guarantee to continue maintaining a privileged position in their quality of life and landscape value.
The Commission
A house to be used as permanent housing for the Architects Besonías and Almeida, bringing as essential condition, solving the security issues of it, in that remote place and with few permanent inhabitants. This difficulty is compounded by the fact that they would be among the first neighbors to inhabit the small condominium. Of course, the issue of secure closure had to be solved without resenting the internal-external integration, undeniable theme in all the works of the study. The other issue to consider was the flexibility of use because, although it would only be inhabited by the marriage, it had to be prepared to receive many visitors and occasionally host their children. Finally, the condition was that the house must develop itself entirely in ground floor.
The Proposal
The study always faces each new project as an opportunity of research in the theory and practice of architecture. In this occasion, as the resolution of the house security was so important, it seemed interesting to see where this strong condition could be taken as a generator of the project. How far the formalization was dependent on the solution of the problem, and how far this dependence could strain without affecting the good aesthetic result, always operating within the standard costs for a house.
Reverse an alleged negative condition specific of this assignment and turn it into a solutions search engine that won’t waste the potential that this problem entails was a decision that led the designers to propose a house which extends up to the party walls to have only two vulnerable fronts. In this way, the two facades of nearly 14 m long became essential elements of this project. Of this first decision and the need to solve the project on ground floor comes almost naturally the proposal of creating interior courtyards to get natural light and allow cross ventilation in all areas of use.
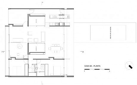
Then it was proposed a resolved home in a plant divided into 12 space modules (four of front and three of deep) of 3.30 m side. Two of them are empty and are proposed as small interior courtyards with the vegetation as protagonist in one of them, and the water in the other. These roofless spaces are added to the adjoining sites, providing a feeling of more amplitude and a changing atmosphere by the effects of the light coming through them and the contemplation of life that develops there. They also offer a cut of the sky and surrounding landscape from the most diverse corners of the plant.
The front facade was projected as a plane composed of stacked pieces of quebracho wood, that gives privacy to the rooms that are placed at the before mentioned front, in addition to solving the sealing of the house. Toward the back, the chosen system to give security to the house should be of quick operation and affordable cost. The proposal was then, a roller metal curtain that when it is opened, it is completely hidden inside inverted beams of the roof and that is activated by pressing a key.
The Functional Organization
The house is set back from the road through the condo with a garden and flooring suitable for parking a car, made with quebracho sleepers buried in the earth.
As the house comes from middling to middling was necessary to propose, in addition to the main entrance, another service that would enable direct entry into the back of the lot so as to resolve the activities of maintenance.
You reach the two doors by a partially covered deck. The front door opens to a single space, with the water courtyard and the green courtyard as main characters. There you can develop meetings in a flexible manner, only determined by the equipment. On one side of this space, and protected from view behind a hanging wall, are the bedrooms and bathrooms, and towards the opposite, the service entrance, the kitchen (which is hinted just across the courtyard green) and the laundry. In the background the different activities of the house extend in a semi-covered stretch that goes from middling to middling, with very indefinite boundaries between inside and outside. The house is linked to the pool through a solarium. The rest of the lot is free to be occupied by the proposed vegetation.
The Structural Solution
The plant of the house, 13.70mx 13.00m, is covered by a series of reinforced concrete slabs, with inverted beams around the perimeter to hide the subfloor slope and the waterproof membrane. These slabs rest on two lateral mediators and a series of internal baffles arranged in a modular grid and with “thickness” as to also function as sites of storage.
The Construction Work
As noted the constructive solution of the front closure plane is an element that required a detailed study, since this depended on the presentation of this property. This should be an element that would allow light entrance but, at the same time, ensure the tightness of the house. It was decided, for aesthetic reasons and ease of construction, stacking quebracho sleepers cut in half and glued and threaded with each other and with spacers of the same material, by threaded rods of iron.
In the rest of the reinforced concrete house, the unique character, was left exposed without any surface treatment, except in the two partitions as mediators by weathering was considered necessary to apply on the inside a coating of MDF boards of guatambú plated wood with an air chamber to resolve the thermal insulation.
There are only three masonry internal partitions around the bathrooms to resolve the plumbing. The floors, both indoors and outdoors, are smoothing cement pads separated by plates of stainless steel. The bathrooms and kitchen counters are concrete slabs with smooth surface protected by a lacquer. The openings are of dark bronze anodized aluminum with air chamber glass. Heating is by underfloor heating. The kitchen furniture and all the different doors are MDF boards of plated guatambú wood.
- by Matt Watts

















