Gravata Apartment by Marcelo Couto
This contemporary apartment located in Sao Paulo, Brazil, was designed in 2015 by Marcelo Couto.















Description by Marcelo Couto
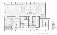
Apartment restructuring in an icon building of the Paulista Modern Architecture, built in 1964 by Rino Levi architect.
To meet the owners demands and recover with a contemporary language the original architecture, the architect Marcelo Couto upgraded the facilities, plants, finishings, highlighting the importance of the existing structural elements as also the internal garden. Its structure is defined by a longitudinal axis and peripheral pillars releasing the plant for more flexibility in the layout as a complete change of bathrooms positioning that previously had artificial lighting and ventilation with a ventilation shaft.
With the demolition of a room it was possible to increase the living area and to open the kitchen for an integration with the TV room.
The use of fair-faced concrete reinforces the originality of existing and gives contemporary to the restructuring project.
Photography by Maíra Acayaba
- by Matt Watts





























