Sonoma weeHouse by Alchemy Architects
The Sonoma weeHouse is a minimalist house located in Sonoma, CA, United States, designed by Alchemy Architects and completed in 2016. This compact, ultra-minimal, high-end home features steel frames, glass walls, custom corrugated weathering steel boxes, and Ipe interiors. The project includes two open-sided boxes set on board-formed concrete plinths, showcasing Alchemy’s weeHouse design customized for luxe finishing requirements. The project embodies compact housing solutions with architectural brilliance and high-end design.







Ultra-Minimalist Architecture in Santa Rosa, California
The Sonoma weeHouse was designed in Minnesota for a client in San Francisco, built in Oregon, and shipped to its Santa Rosa, CA site 90% complete. The client, an architect himself and Apple’s Senior Design Director, Real Estate and Development, was the project’s co-pilot with Geoffrey C. Warner, Alchemy’s principal architect. This small, ultra-minimal, high-end home, showcases the Alchemy’s weeHouse design, customized to meet luxe finishing requirements.
Seamless Compact Housing Solutions and Architectural Brilliance
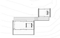
The home is composed of two minimalist open-sided boxes set on board-formed concrete plinths nestled on the edge of gnarled oaks. Both structures feature steel frames, 9 ft. tall sliding glass walls set into custom corrugated weathering steel boxes, and ipe interiors with oiled oak cabinetry. The offset boxes are connected by a set of Alchemy-designed steel stairs and railings which were fabricated in Minnesota.
Dramatic Landscape And Expansive Views In Sonoma weeHouse
The 16 ft. x 40 ft., 640 SF primary box features a whitewashed oak bed box in the middle of the volume. A kitchen-dining-living room space is on one side, and a bath space on the other. For shipping logistics, the primary box was composed of two modules, one being the 10 ft. x 40 ft. porch. The porch module was bolted onto the main module onsite, and cantilevers into the site’s dramatic landscape.
The accompanying 330 SF guest house is an abridged version of the larger module with a large whitewashed oak wardrobe forming the bathroom wall. Both structures take advantage of the site’s expansive view.
Photography by Brian W. Ferry
Visit Alchemy Architects








