Southlands Residence by Dialog
Designed by Dialog, this modern two-storey Southlands Residence is situated in Vancouver’s historical Dunbar-Southlands neighborhood.














Description by Dialog
A year-round fresh water stream divides the irregularly shaped site and the lush basin resulting from long-standing environmental forces sets the stage for this dramatic residence.
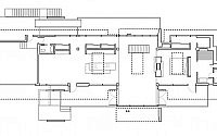
The house is designed around the structural grid established by an earlier residence. While remnants of original footings and columns remain, the Southlands Residence reinterprets the competing notions of privacy and exposure facing the well-travelled location. This is done in part through the use of concrete walls in the landscape, meticulous interior millwork objects, and substantial feature skylights.
Access to the private outdoor environment is provided on the north side of the house through an integrated garden storage and potting area. A concrete path crosses over the slow moving water and threads south under the sculpted wooden belly of the house. Where previously the landscape had bounded interior volumes, the building skin now frames entry into the luscious outdoor realm.
A perimeter network of decks covers outdoor areas and blurs the line between interior and exterior. Surrounding bamboo, rhododendrons, and Japanese maples become as much a part of the interior living areas as the client’s carefully selected pieces of furniture.



















