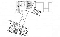
Rabanua Residence by DX Arquitectos
This modern two-storey 3,000 square feet residence designed by DX Arquitectos is situated in Huentaleuquen, Canela, Coquimbo Region, Chile.



-->



-->





























