Casa LA by Elías Rizo Arquitectos
Designed in 2014 by Elías Rizo Arquitectos, this modern concrete residence is situated in Mexico.



















Description by Elías Rizo Arquitectos
Casa LA was born out of an especially fruitful relationship with the client. Thorough communication was established from the beginning and we were granted complete trust to translate their needs into space.
Breaking with the norm established by all the houses in the vicinity, Casa GR recedes a considerable distance from the setback line, to yield a large open space below the tree canopies, a stark welcome gesture.
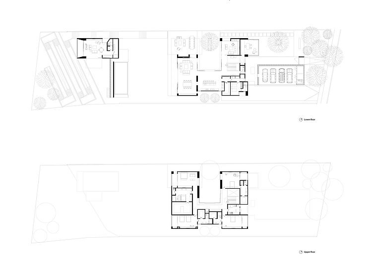
The main entry into the complex proceeds to an open passageway that runs along a rough-hewn stone wall and postpones the access into the house an additional number of meters. A glazed box containing a studio protrudes from the building. It hovers above a large pond that can be crossed via a series of stone pavers that rise above the water and lead directly into the public areas of the house. The garage, concealed on the other side of the stone wall, compels cars to park sideways so as to render them invisible from any space in the house.
The entry sequence into the building presents a series of layers, starting with the garden space beyond the setback lines, following through the open corridor past the pond, and crossing through the central courtyard all the way to the living spaces at the back of the main building.
A central courtyard scheme was implemented to introduce natural ventilation into every space of the house without compromising privacy. The corridors around the courtyard on the ground floor are defined by a series of operable windows that allow the kitchen and living spaces to bleed out into the exterior, when the weather allows it.
Expanding on the theme of permeability that dominates the ground floor, similar solutions were implemented throughout the living quarters on the second level, to allow for private, open spaces. Such is the case with the small, glazed atrium that ventilates the master bathroom and the deeply recessed balconies that yield generous exterior areas to all bedrooms.
Crossing the lawn, beyond the living spaces on the ground floor, a pool and a concrete volume containing an entertainment room overlook a small ravine outside of the property. Below this volume a staggered pathway descends gently to negotiate the changes in topography on a pronounced cliff, leading down to a lower landscaped area.
Dark gray steel, glass, wood, concrete and stone compose the greater part of the material palette throughout the house, which is complemented by accents in leather and stainless steel. The master bathroom receives a special treatment as it is covered almost in its entirety with white marble.

Photography by Marcos García
- by Matt Watts



















