Suburban House by STC Arquitectos
Located in Alta Gracia, Argentina, this concrete residence was designed in 2015 by Salassa-tissot-castañeda / STC Arquitectos.









Description by STC Arquitectos
An atemporal container supported on the semi-urban grid, as an artificial element that only seeks to contemplate the environment, as well as the environment seeks to contemplate it. In a contemporary way, its boundaries evoke the remnants of the industrial era of Alta Gracia, the English style steel sheet houses, the station and the train.
THE SPACE
Diaphanous environments, without fanfare. What matters is the interaction of the object with its surroundings. The intermediate spaces pose the eternal tension between the natural and the human impact.
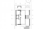
Located in the west of the city of Alta Gracia, in a peripheral area of high environmental quality. On a plot of 12×50 party we design a compact house, prioritizing good natural light and the views to the mountains and creek. The level of support is above 2.5 meters with respect to the sidewalk, this allowed us to generate large openings without prejudice to privacy.
Photography by Arq Gonzalo Viramonte
- by Matt Watts

















