Pinkney Neighborhood House: A Shining Example of Studio 804’s Sustainable Design
Experience the epitome of modern, sustainable design with the Pinkney Neighborhood House. This high-performance masterpiece, nestled in the heart of Lawrence, Kansas, was conceived and brought to life by Studio 804 in 2023. This striking residence stands as a testament to the pioneering design and research efforts of Studio 804, renowned for their impressive portfolio of 16 LEED Platinum-certified projects.











About Pinkney Neighborhood House
Introducing Studio 804: A Hub of Innovation
Based at the University of Kansas’ School of Architecture and Design, Studio 804 is a dynamic one-year, hands-on design/build experience. A not-for-profit 501(c)3 corporation, it’s composed of dedicated graduate students driven by innovation in building solutions.
Pioneers in Sustainable Design
Setting the pace in sustainable design, Studio 804 proudly boasts 16 LEED Platinum-certified projects. In addition, one Gold certified project and three Passive House certifications grace their portfolio. This testament to quality hasn’t gone unnoticed. In fact, these impressive accomplishments have won them numerous awards and global recognition.
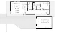
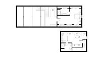
Showcasing the Latest Masterpiece
Recently, the class of 2023 completed their latest project: a cutting-edge, sustainable infill house situated in Lawrence, Kansas. This high-performance home stands as a testament to the continued evolution of modern design.
Photography by Corey Gaffer
Visit Studio 804
- by Matt Watts
























