Casa RM – Totoritas by Cheng Franco Arquitectos
The project consists of a two-level single-family house with approximately 205m² of covered area, located in the private condominium “Totoritas,” 80 km south of Lima, Peru. The site is 100 meters from the beach and is situated next to one of the main streets of the condominium. The client’s brief described a house that its architecture would not close off to the exterior but instead be as open as possible to the main front, inviting and welcoming passersby and neighbours.










The Extroverted House
The project was completed in early 2025 and consists of a two-level single-family house with approximately 205m² of covered area, located in the private condominium “Totoritas,” 80 km south of Lima, Peru. The site, of similar size, is 100 meters from the beach and is situated next to one of the main streets of the condominium.
An Open Architecture
The client’s brief described a house that its architecture would not close off to the exterior but instead be as open as possible to the main front, inviting and welcoming passersby and neighbours. The social areas, such as the barbecue, the pool, and the large dining area, are located on the double-height terrace that marks the main façade of the house.
Dynamic Internal Spaces
The view from the outside presents a continuous, open, and flexible space, which not only contains the terrace spaces but also the living room, dining room, TV room, and kitchen inside the house, avoiding any partitioning elements that might interrupt this connection.
Perspective Emphasized
Due to the triangular shape of the site, the perspective of the space is emphasized, giving the impression that the first floor of the house, its openness and continuity, is deeper than it really is. The view ends with the main staircase of the house, which is developed separately from the walls to give greater prominence and freedom to its form.
Defined Volumetry
On the main facade, a concrete structure defines the terrace space and the volumetry of the house.
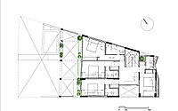
The Layout
Areas on the first level include the social areas, guest bedroom, pool, terrace, and service area. On the second level, the master bedroom, three additional bedrooms, and the family room. The bedrooms on the second level overlook the double-height terrace of the house, where the pool and the main social areas of the house are located.
Photography courtesy of Cheng Franco Arquitectos
Visit Cheng Franco Arquitectos
















