Barn in Pyrenees by PPA
This beautiful mountain retreat designed by PPA is situated in the mountainous region of the Hautes-Pyrénées, France.











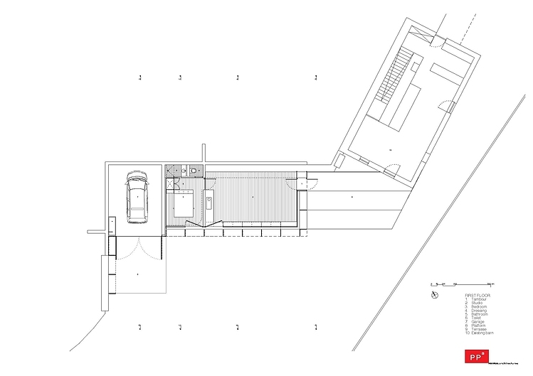
Description by PPA
The site on which this project is situated lies in the verdant valley of the Adour de Lesponne river, in the mountainous region of the Hautes-Pyrénées. It is positioned on an area of flat pastureland nestled against a steep slope and offers fine vistas over the valley below and lofty mountain peaks beyond. It is framed by an area of deciduous woodland and is partially occupied by an existing stone barn. This agricultural building, a remnant of the area’s lively agricultural past, has been converted into a holiday home. The quality of the conversion demonstrates great respect for the building’s vernacular architecture and great sensitivity to its rural setting, thereby preserving the authenticity and unique character of the site. Our purpose was to add an extension to the existing barn conversion, creating new living spaces (a guest room and multi-purpose room), along with a utility area and garage. The specificity of the extension project is rooted both in the character of its natural setting and that of the existing building, and creates a double bind in terms of both typology and design. The project opposes the powerful architectural presence of the barn against a desire to ‘efface’ the new building and create a ‘topographical feature’ of the utmost discretion Yet at the same time, its design confronts the barn’s resolute sense of inwardness – protected by thick walls with scarce windows – with a new, more extrovert space, turned outwards towards the panorama of the majestic mountain landscape. As an echo to the tradition for setting mountain shelters against the incline of the hillside, our design explores the idea of partially buried living spaces. This not only enabled us to respect the integrity of the rural site, but also avoid creating a clash between the extension and the existing barn, by greatly reducing the volumetric impact of the new building within the landscape. The extension was positioned in the southern portion of the site, on equal footings with the barn, and slips effortlessly into the naturally excavated lay of the land. By retaining the earth above it, the building opens up an ample exterior living space and a sheltered terrace area adjoining the barn. The façade unfurls along the incline and offers stunning views out across the valley and mountain tops. The visible portion of the extension – the façade – first appears to be a simple log store, and only then goes on to reveal the living spaces which open up beneath the hillside. The log store is made from industrial steel and is part and parcel of the architectural structure of the whole. It incorporates access to the interior, provided at given points along the façade’s glazed wall. A dry stone wall, like those used as retaining walls for cultivating crops in the area, forms the extension’s rear elevation against the incline and juts out along the exterior terrace. The concrete slab forming the ceiling of the multi-purpose room is visually dissociated from the stone wall, thereby staging the natural light which floods in to illuminate it from above. The structural steel frame forms a deep and solid façade, serving not only to dry and store logs, but also filtering the light. From within the building, it invites the gaze outwards and frames our view of the surrounding countryside. The new building is firmly anchored in its rural Pyrenean setting and creates meaningful bonds with the natural environment it embraces.


















