House in Ishikiri by Tato Architects
Modern Japanese two-storey single family residence designed by Tato Architects / You Shimada situated in the city of Osaka.














Description by Tato Architects
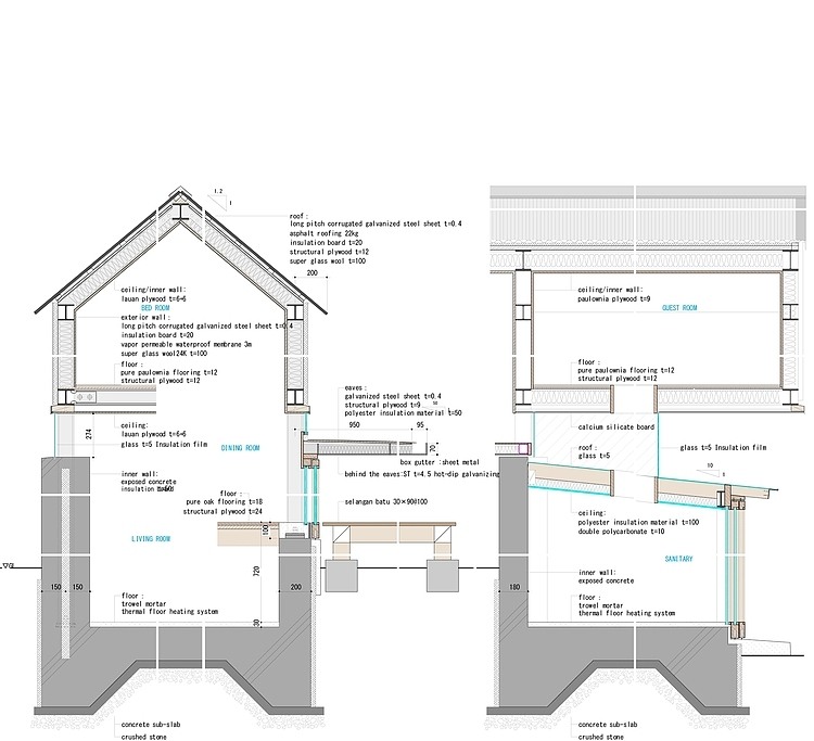
Dark concrete walls and a black archetypical house volume above it, a translucent lean-to roof, a white high flat roof and a silver box under it. Those totally different and inconsistent materials and colors are combined to form this house.
The site is in a residential area developed around 1930, sloping to the west on a hillside of Mt. Ikoma, which overlooks the urban area of Osaka Plain. We observed favorably the mosaic pattern of old and rebuilt houses telling each history of over eighty years.
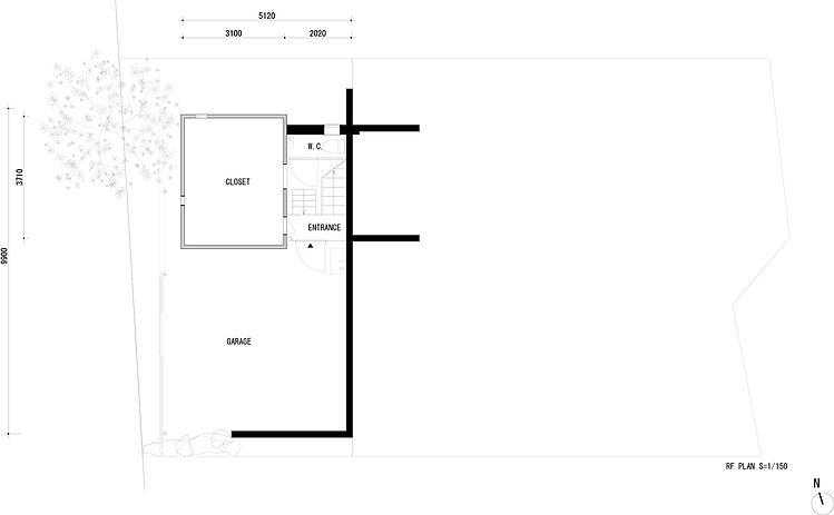
It was not easy to find out the way for making the house coordinated to the surroundings as the site is 3.5m up from the road so that the house would look larger than the actual size. We proceeded with the design by making places step by step searching an appropriate way of building the house that adapt to surrounding environments.
First, we made concrete walls with rough texture by using formwork made by small split lauan to match with old masonry walls and concrete-block walls in surrounding environments, and covered those with a black archetypical house structure following the roof form of houses in the neighborhood. After that, living space is made in the way as renovating interior space. The space for facilities to support the daily life such as a kitchen and a bathroom is made in between the concrete walls and the cliff-retaining wall behind the house, covered with a translucent lean-to roof and wooden windows and doors. The Venetian window blinds help residents to avoid to be seen and control their privacy.
On the road side, a thin, modern flat-roof, which represents a new life style covers the box made of steel plates commonly used for temporary enclosure at construction sites in Japan, pretending atmosphere of ongoing construction sites. The overlap of transparent colorful fabrics of the curtain designed by Akane Moriyama makes depth and beautiful gradation in a child’s room, which is situated between the box and the flat roof.
These resulted in making places that are related to both “before” and “ after”. Living places are provided in space where different time-axes meet as “concrete walls” and “ a black house-type,” “concrete walls” and “a retaining wall,” and “a white flat-roof” and “boxes of steel plates.”
Rethinking the whole residential are from the way that this house exists would suggests us to rediscover potentials and richness of all elements and space among those with different histories in the area.


























