Hendel Residence by SaaB architects
in Kfar Yehoshua, Israel, SaaB architects designed back in 2009 this modern single family house. Enjoy!









Description by SaaB architects
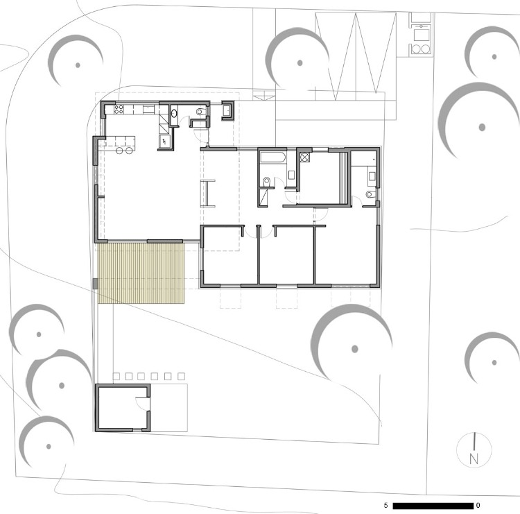
On a flat site, surrounded by Pecans and abundant vegetation, we were requested to plan a compact efficient house, which will cope successfully with the unique weather conditions characteristic of the Izrael valley. The clients visioned a modest house that will encourage an intimate family atmosphere, and will be easy to maintain.
Two major issues determined the positioning of the house on the lot – the advantages of the south facade in the given climate, and the need to maintain privacy in a corner lot situated in a central location in the village. These issues dictated an elongated structure oriented north/south, with maximum openings towards the south, and a certain closure towards the street.
In accordance with the clients, the house was designed in simple clean lines – two perpendicular volumes, truly expressing the division between public and private realms in the house. Inspired by the building materials characteristic of the agricultural sheds in the village, we chose to use aluminum cladding on the house’s facades.
Two unique systems complete the treatment of climatic issues in the house. The first is a double wall construction system, designed to moderate the inner climate of the house in severe weather conditions. The second is a sophisticated shading system, suiting every opening with a specific type of blind, best able to serve its needs.
- by Matt Watts







