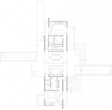
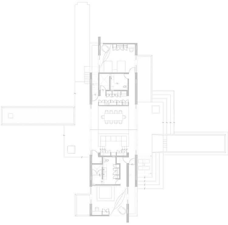
Hacienda Sac Chich by Reyes Ríos + Larraín Arquitectos
Minimalistic spacious residence featuring original stone sculptured furniture located in Acanceh, Mexico. It was designed back in 2010 by Reyes Ríos + Larraín Arquitectos.



-->



-->
















Visit Reyes Ríos + Larraín Arquitectos
- by Matt Watts




















