Namly House by Chang Architects
Situated in Singapore, this modern concrete three-generation-house was designed in 2012 by Chicago-based Chang Architects.












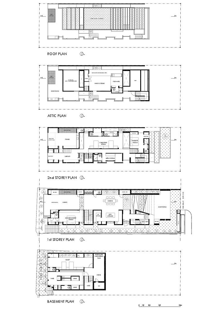
Description by Chang Architects
Peter and Lucy wanted to house three generations under one roof, to enjoy grandparenthood without having to compromise on freedom, differing needs and the privacy of each generation. Peter is a fan of concrete architecture, and wanted a tropical house in reinforced concrete, a deck where he could rest and gaze upon the scenery of the neighbourhood, internal walls finished in white putty , minimum frontal openings for privacy and noise control. In addition, his wish list included :
– 1 house yet 2 homes
– Simple yet beautiful
– Front yet back
– Tropical yet cool n breezy
– Natural yet tasteful
– Raw yet elegant
– Indoor yet outdoor/in touch with nature
– Small yet spacious
– Minimal yet more than enough
– Less yet more
In this region, the tropical house is commonly characterised by these elements: Deep overhang eaves, sun-shading screens, louvers, extensive usage of timbers, etc. This house thus allowed for a reinterpretation of the tropical house; one that addresses the family’s needs, yet relates appropriately to the site context and the tropical climate.
Entry to the interior is a procession through a vestibule, then greeted by a cascading water feature. Integrated with the car porch, this water feature collects rainwater and serves as a natural cooling agent for the spaces, a green oasis and a backdrop for the thoroughfare. Wind drawn into the interior from above and below the stepped features gets cooled. The other end of this thoroughfare is Peter’s deck, which opens to a panoramic view of the neighbourhood. Diagrammatically, this is the communal spine, with the bed rooms and utilitarian spaces along its sides. This is the common gathering space, the children’s playground, and a wind tunnel for the NE/SW monsoons. The interior, insulated by the thermal mass of the reinforced concrete walls, remains cool at all times. In the afternoon heat, the interior temperature is two to three degrees lower than the outdoors. Within the monolithic structures, spaces are day lit, and crafted by varying day-lighting strategies and the choice of landscape elements.
Landscape is integral of the architectural design to complement the raw concrete, and to address the heat island effect as a result of the concrete surfaces. Specific plant/tree species serve their respective roles as sun-shades, visual cues (e.g. coral tree), space definers (bird next ferns, dracaena), connectors (scheffleras), for sensory-enhancements (pandan leaf), for therapeutic purposes (eucalyptus, melaleuca), and for food (chillies, kangkong, ladies’ fingers). A rain-harvesting system is incorporated for auto-irrigation of the landscaped areas.
This house characterises the family. Its solid front belies an interior that is open and transparent; beneath its cold concrete shell is a sanctuary of heart-warming dwelling spaces; and its stoic monolithic presence conceals a constantly cool environment that is responsive to the tropical climate. It is a manifestation of great collaboration between the family and their architect. It demonstrates the potential of housing a multi-generation family serving differing needs and aspirations, in a contemporary tropical setting.


















