West London House by SHH
Situated in the Holland Park area of West London, this luxurious five-storey residence was recently completed by SHH.












Description by SHH
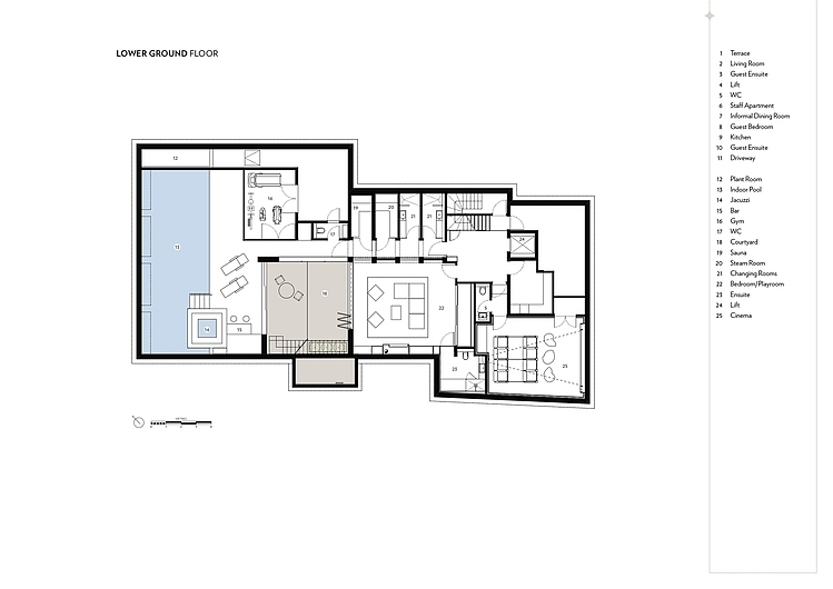
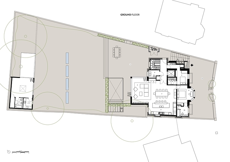
SHH has completed a new-build, detached, seven-bed, five-storey house in west London (with retained front façade), which features one of the largest pools of any property in the area (measuring 14m x 4.5m and located behind a sunken rear courtyard).
An original Victorian property on the site had been split into four flats in the post-war period, which the current owner had purchased piecemeal over time, before coming to SHH with a vision of converting the entire property into a single, luxury family home, based on the principle of lateral living, with high ceilings and extensive living spaces, as well as a very generous pool and leisure complex below ground, to include a spa, sauna, steam room, gym, bar area, changing rooms, toilets, walk-in wine cellar, playroom and cinema/media room.















