Holiday House Vindö by Max Holst Arkitektkontor
Wooden holiday retreat designed by Max Holst Arkitektkontor located on Vindö, an island in the Stockholm archipelago, Sweden.










Description by Max Holst Arkitektkontor
The site is located on Vindö, an island in the Stockholm archipelago, Sweden. Upon first glance the site appears a fairly typical archipelago plot with granite outcrops, pine trees and blueberry bushes but soon reveals it’s unusual dramatic topography presenting an exciting opportunity to the architect Max Holst as well as for the developer Strömma Projekt AB
The building stands on a ridge bordering a 10 m deep drop into a gorge. In which a number of magnificent trees, mostly pine but also some hardwood grow. On the sheltered terrace and in the house one finds the tops of these trees at eyelevel.
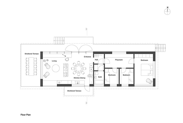
The orientation of the ridge dictates the building’s form and the spatial subdivisions and the spatial emphasis is on the large living, dining and kitchen space, which leads onto to a large sheltered terrace towards south/east. Children’s bedrooms are of a modest scale with a master bedroom located to the East. As a buffer between the living and sleeping areas, a bathroom and is located. The hallway acts as a spacious playroom to the neighboring the children’s rooms.
The material palette is simple and essentially rooted in local building traditions. Tectonically, the house is composed on black concrete plinths and exposed timber rafters highlight the repetition of a 120mm module on which the construction is based. The only setback from this strict systematization occurs in the bathroom where the room is simply not suited for these measurements. Room dimensions fell easily into place, becoming an exercise in creating dynamic spaces with a constant connection to the sky and surrounding forest, all within this framework.







Visit Max Holst Arkitektkontor
- by Matt Watts















