Hover House by Bower Architecture
In 2013 Bower Architecture completed this beautiful wooden single family property situated in Melbourne, Australia.









Description by Bower Architecture
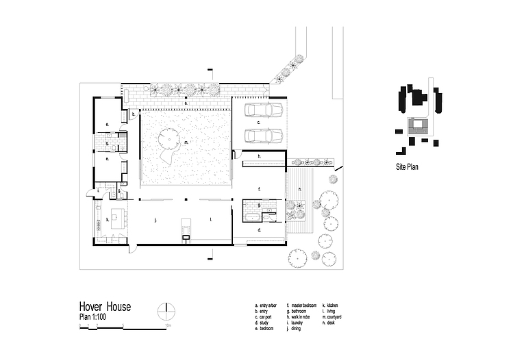
Hover house re-imagines the single dwelling courtyard and explores the subsequent architectural opportunities on an Australian battle axe block with minimal street frontage.
To solve the challenges and harness the opportunities of the site, an internal focus was created with a design that extrudes a simple sectional gable shape through the length of the house. The resulting form maximises natural light, efficiently collects rainwater and emphasises views to distant gum tree canopies. The gable roof shape establishes dynamic interior volumes, from intimate private areas and external galleries to higher living spaces.
Defined by its unique simplicity and linkages between key spaces to the compelling courtyard, Hover House is both innovative and modest, in the setting of a challenging context.










