Benbulla House by Austin Mcfarland Architects
Designed in 2013 by Austin Mcfarland Architects, this modern winter home is situated in Wherrol Flat, NSW, Australia.










Description by Austin Mcfarland Architects
Bob and Susan commissioned us to design a second winter home, located on a 90-hectare property in the Manning Valley on the Mid North Coast, New South Wales, Australia. They came with a clear list of requirements for rooms and their brief was “opposite to their home in Pittwater,” Tarrangaua, a 1925 home built for the famous Australian poet, Dorothea Mackellar. This summarizes the process of designing for Bob, the sensible engineer and Susan, the expressive author.
Timber and bricks are the two dominate building elements. Bricks were the reason that Bob and Susan first came to the area. Bob, a combustion engineer, designed a new kiln for the local Lincoln Brickworks. The local area is timber country. Timber is another important material used for its practicality and also its beauty.
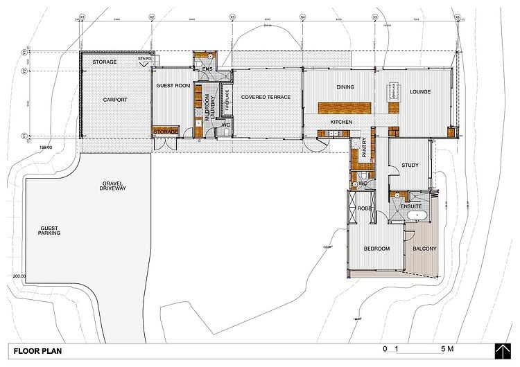
The plan is clear, simple, and functional. There is a clear and direct relationship between the rooms and outdoor spaces. This simple, functional plan becomes special with the desires of Susan for texture and slight chaos. The house is also autonomous for power, water, and waste. People hired, materials used, and systems installed were based on supporting the local area. The clients wanted the building process to help establish relationships and make connections within their new local area.

Visit Austin Mcfarland Architects
- by Matt Watts









