Villa S by Saunders Architecture
Located in Bergen, Norway, this inspiring three-storey private residence was designed by Saunders Architecture.



-->



-->










Description by Saunders Architecture
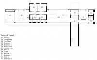
Villa S is located in Bergen, Norway. This house is 35m (114.8ft) long and 6m (19.7ft) wide consisting of two main structures.
The lifted element contributes to the illusion that the house is floating in the forest, as well as creating a covered outside space.
The first floor contains the main entrance and the storage areas of a bicycle pod, kayak pod and technical pod.
A library is situated in the roof of the vertical element, while a large roof terrace can be enjoyed above the horizontal structure.
Photography by Bent René Synnevåg
- by Matt Watts























