Twin Houses by Ekler Architect
Amazing slightly different houses designed by Ekler Architect in 2012 for two friends. This property is situated on a hillside in eastern part of Hungary.


















Description by Ekler Architect
The twin houses, by Ekler Architect led by Dezső Ekler, stand in a garden suburb of a city in East Hungary. The clients, two good friends wished to build only slightly different houses which are situated on a hillside covered by acacia grove. The two-storey buildings contain service rooms in the basement (garage, wellness room, storage, mechanical room) and living areas, rooms on the ground floor facing the hillside.
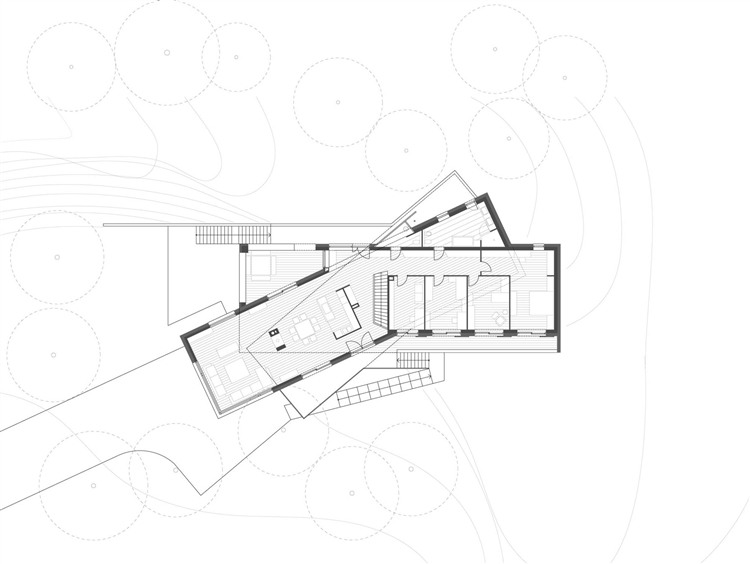
The spacious site offered a chance to locate and form the houses freely. The fortunate South-East orientation and the marvellous view both collide with the approach. Therefore, oriented to that direction a cantilevered structure facilitates the living areas overhanging above the garages. Side loggias turning out from the main volume accommodate the representative guest door on the east side and the garden exit on the west. The composition of the buildings is based on the rotation of three volumes around a base point which allocates the individual spaces to optimal positions, and provides diverse visual character to the houses from every side view.
The lobby is situated in the middle, at the narrowest of the building. In front of it the kitchen, dining room and living room lie with full panorama and direct connection to the garden. The bedrooms are drawn back to the north annexes of the building. The house was built of reinforced concrete structure, with brick infill walls. The intersecting wings of the building are characterized by different claddings: brick and thermo wood but with reciprocal allocations on the two buildings.
- by Matt Watts
















