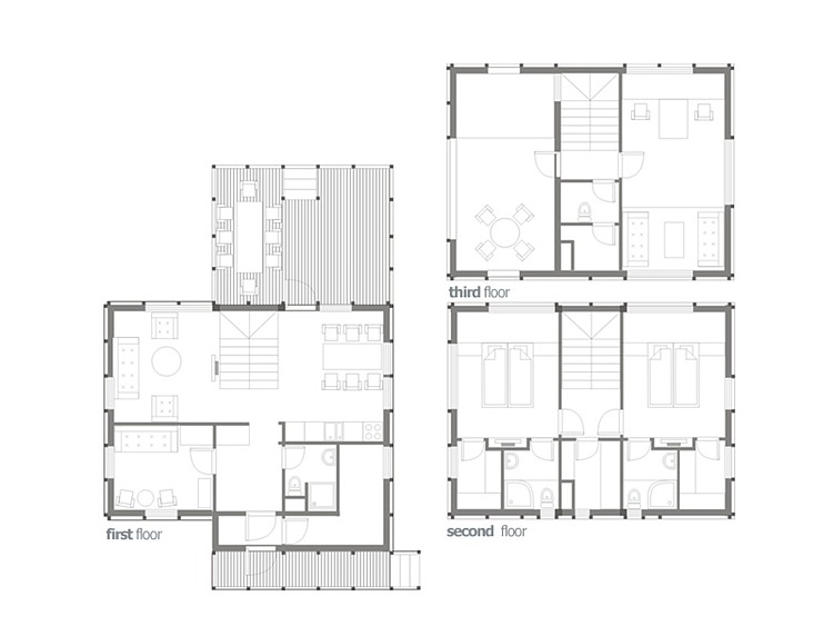
Wood Patchwork House by Peter Kostelov
Designed by Peter Kostelov, this summer cottage is located near the Volga River in a small village in Tverskaya Region, about 90 miles from Russia’s capital.



-->



-->





















