Postcard House by Hufft Projects
Designed for two brothers by Hufft Projects, this weekend retreat is located on Table Rock Lake in southwest Missouri, United States.














Description by Hufft Projects
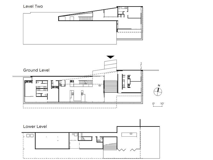
The house was commissioned by two brothers as a weekend retreat located on Table Rock Lake in southwest Missouri. It is situated on a peninsula with lake views on three sides. The house sits on columns and utilizes pervious paving. Natural light and ventilation flow strategically through the home enhancing it’s picturesque views and relation to the natural setting. Design decisions regarding form and material choices respect and develop these ideals. Taking inspiration from a vintage Polaroid Camera, the form of the building is intended to frame the scenic setting from every angle – creating ‘postcards’ from within. This house is all about the experience and the views.
The Postcard House is a conventional wood frame construction. Exterior materials consist of prefinished metal panels, and stained cedar siding. The building envelope features spray-foam insulation and thermally improved glazing for superior energy efficiency. High-efficiency forced-air systems heat and cool the house.



















