Villa in the Sky by Abraham John Architects
Abraham John Architects turned two separate apartments situated in Mumbai, India into a 3500 sft contemporary penthouse.




















Description by Abraham John Architects
The challenges:
The brief called for the complete remodelling & combining two separate apartments on the top floors of an otherwise unremarkable building into a refined 3500 sft contemporary penthouse suitable to the favourable tropical climate & the cosmopolitan atmosphere of Bombay.
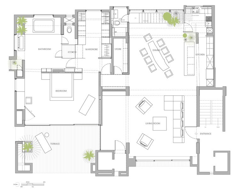
The existing apartments had very different characters and were not in keeping with the client’s requirements. The client wanted a villa in the sky, something more minimalistic, architectural and totally connected with the landscape. All internal walls were demolished to create an open plan layout and recapture stunning views of the Arabian Sea on the west and tree lined slopes of Mount Mary Hill on the East.
Being near the sea and on the 7th& 8thfloors of an existing building, there were many construction challenges, from the logistical point of view & the high velocity sea breeze, further, work had to happen with the consent of the neighbours. A brand new staircase cantilevered off the columns helped connect the two spaces without loading the cantilevered slab; the entire project took a year to complete.
The concept:
The design approach took advantage of orientation: the sea is now visible from all rooms of the house, including the master bathroom. Previous cave-like rooms are turned into optimal, unusually large living spaces for Bombay standards. The main design principles followed were of orientation to the natural elements (sun, wind, water), openness and connection with nature at all levels (visual & physical), using natural & eco-friendly materials. Landscaped terraces and skylights created areas accessible from all rooms in the duplex. The kitchen is in the south east in keeping with Vastu, (the Indian principle of design) and is flooded with morning light. The living area & the bedroom face the sea to allow for evenings spent with the sunset. Being a bachelor home, additional bedrooms were dispensed with to allow for a large master bedroom, walk-in wardrobe, bathroom and terrace which could be made private. The project encapsulates cool, contemporary living in its modern design with equal attention to aesthetics and environmental sustainability, employing energy-efficient. Low consumption technologies and letting one appreciate all its thoughtful detail, inventive and practical ways of creating proficient storage and comfortable living spaces.
The living area:
The open floor plan makes the living, dining & kitchen areas merge into one big lounge connecting views of the lashing waves of the sea and the shore line on the west to the glittering leaves of the trees of Mount Mary Hill on the east. the shared vision of the client and the architect is seen in the minimal layout integrated with landscape, lighting, refreshing earthy colours & natural textures.
The kitchen & dining area:
The open kitchen with a brushed SS island platform is complemented by an enclosed kitchen specially designed for traditional Indian cooking. A teak tree forms the dining table and seating. The exiting pipelines were rerouted for easy access between the two kitchen areas, thus maximising space utilisation. The cold SS island contrasts with the otherwise warm colours and textures of the apartment. Visitors are encouraged to walk bare feet as is the custom. The dining table becomes the focal point for all activities in this relaxing apartment. The black kitchen cabinet forms the perfect backdrop for dinner conversations and parties.
The cantilevered staircase:
A balcony space was converted into a cantilevered wood & steel staircase set against imposing double height windows, visually & physically connecting the upper & lower volumes that were previously disconnected.
Automated blinds span the double height volume.
The master bedroom suite:
The master bedroom suite overlooks the sky lit terrace, with spectacular views of the Arabian sea.
The skylight and pergola protect from the tropical sun and the seasonal monsoon rains.
The flooring pattern enhances the line of sight and continues from indoors to outdoors: dark stained wooden floors and teak wooden deck add drama to each room, offering a personal elegance to everyday spaces
The master bathroom & walk-in wardrobe:
The master bedroom suite includes a private sea-facing terrace, a lavish walk-in wardrobe & an open plan spa bathroom – a fluidity of private spaces that retain total privacy while blending with the landscape. A spacious master bathroom is complete with a jacuzzi, shower, proficient storage, landscape, mood lighting and automation.
The media room:
The hi-tech glass walled media room on top complete with a large size projector screen, concealed ac, av & automation, blurs the boundary between indoors and outdoors to expand the home’s sense of space: it overlooks the sea as well as a spacious wooden deck with a walk-on glass skylight. the luxuriant terrace garden serves as an expansive outdoor entertaining area with artful illumination and an open bar – a real hotspot. automated roller blinds concealed in the roofing convert the open media room into a large, yet cosy home theater for movies, F1 & football matches.
Landscape, materials & contextual relevance:
The home fits within its tropical seaside context and encourages sustainability: reclaimed sleeper wood for garden screens & pergolas, natural stone, recycled tiles, high efficiency mechanical systems, durable engineered wood & natural fabrics; automation with mood lighting, power saving & curtain control, solar heaters & evergreen terrace gardens.
Interior solar shades & large double-glazed sliding windows allow natural ventilation, uninterrupted views & access to landscaped areas, while cutting down on solar radiation and air-conditioning load.
A limited palette of complementary materials ensures consistency in design & minimizes maintenance, adding warmth and texture through light & shadow. the interiors are finely detailed with custom-made furniture. materials used accentuate warmth & transparency.

























