Kicking Horse Residence by Bohlin Cywinski Jackson
Situated at the base of the Kicking Horse ski resort in the Canadian Rocky Mountains, this 3,500 sq. ft. residence is a gathering place for an active family of five.












Description by Bohlin Cywinski Jackson
The clients desired a space that would provide a direct connection to the landscape for seasonal recreation and the flexibility to accommodate larger groups of family and friends, with beds for up to 14 people.
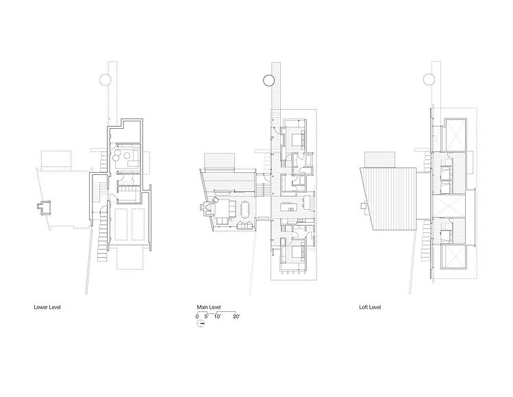
The sloping site is adjacent to a ski trail and surrounded by an alpine forest of spruce and aspen. The house is arranged as two elements on the site: a dense bar along the northern edge containing the sleeping and bath spaces, and an open shell with living and dining spaces oriented toward the extraordinary mountain views. A glass volume links these forms, with the main entrance at the lower level and an upper landing for ski access on the west side. Careful positioning of program enables a sense of openness and transparency while screening the neighboring homes from view.
The linear form of the sleeping spaces cantilevers over a board-formed concrete base containing the garage, mudroom, and playroom. The exposed wood structure and deep roof overhangs express the tectonic qualities of a mountain cabin. The primary entry is located between two concrete walls, with a mahogany and steel stair leading to the living spaces above. A single line of steel columns extends along the main hallway, emphasizing the angle of the bedroom roof plane, which folds over the peak to become an articulated metal wall with operable vents, bringing light and air into the loft spaces. The lofts contain bunk beds that allow flexible sleeping arrangements for children or guests.
Anchored by a tall, board-formed concrete fireplace, the geometric form containing the living and dining spaces floats above the forest floor, allowing natural drainage to flow uninterrupted through the site. Smooth Douglas fir plywood-clad wall and ceiling planes extend to the exterior, framing alpine views and sheltering an outdoor deck. The exterior is clad in a combination of black-stained and clear cedar siding that contrasts with the landscape. Fiber-cement panels with bold colors accent the natural wood finishes of the elevations.
This family retreat uses powerful forms and evocative materials to embrace the natural world.


















