Island Residence by Peter Rose + Partners
Situated near Edgartown, Massachusetts, this single-family residence was designed by Peter Rose + Partners.














Description by Peter Rose + Partners
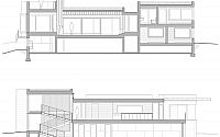
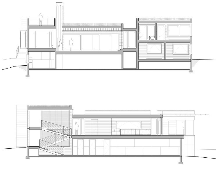
Nestled in the richly wooded grounds of a narrow strip of land on the island of Chappaquiddick near Edgartown, Massachusetts, this single-family residence is part of a collection of environment- and landscape-centric interventions that blur the boundaries between structures and landscape, and between inside and outside. Comprised of four structures – a 6,300 SF main residence, a 630 SF garage, a 270 SF storage shed, and a 130 SF boat house – the site is bounded by the ocean to the west and by a well-protected, shallow bay to the east. The project replaced a house, garage/guest house, and a long driveway running through a meadow, previously located on the site.
The site strategy involved moving the road from the middle of an existing meadow to a new location, winding through an oak and pine forest (without damaging any of the existing trees), and terminating it in a hidden courtyard – bounded by the garage, a utility shed, and the forest edge. In addition to providing a remarkable process of entry through the trees, the result of the new road location is that the cars and road, for the most part, disappear completely from view, altering both the scale and atmosphere of the site dramatically.
Located at the extreme edges of the site, on the water in both cases, the main house and boat house are carefully and strategically located, both in section and plan, to optimize the experience of being in and using these structures, while minimizing their environmental and visual impact on the site. The boathouse, sitting on four thin concrete columns, was stealthily sited among pine trees, and constructed without touching even a branch. The house works in plan and section so as to offer remarkable views of Nantucket and the sunrise over Cape Pogue Bay to the east, and of the ocean and Edgartown and sunset over water to the west. Locust trees on the western side of the house screen it from the late afternoon sun and provide camouflage as well. The house is low to the ground, clad in sealed, unpainted wood to naturally weather to recede over time into the surrounding landscape. One intention of the project is that it be as close to invisible in the larger landscape as possible.
To minimize the environmental impact of the new construction, the house deploys a suite of sustainability strategies that not only conserve energy, reduce waste, and save money, but also promotes intimate encounters between the house’s guests and its surroundings. The structure’s unassuming cedar-clad façade belies a sophisticated building envelope, which utilizes rigid insulation and other strategies to withstand the hardiest of nor’easters. Where the façade lacks wood, it contains fully operable glass windows, created by a local craftsman who has developed a technique which allows corner windows to open completely, and large panels of glass to slide open along the exterior façade of the building, leaving nothing but the view and the ocean breezes. Strategically placed to encourage natural ventilation, these calibrated window openings work in concert with the structure’s radiant heating and cooling to modulate the residence’s living spaces and vastly reduce the size and operating cost of HVAC equipment. The residence’s southern exposure floods the interior with natural light, maximizing solar heat gain and minimizing electrical consumption, while green roofs – covered in natural sea grasses – provide greater thermal performance and roof insulation, improve air quality and biodiversity, manage rainwater, and reduce noise. The landscape was likewise considered in terms of sustainability using local species, and an irrigation system that uses water collected on green roofs and stored in a large cistern.
Commissioned by an active, sophisticated, and young family, the project is intended to be a vacation home, gracefully and respectfully sited on this most glorious piece of property, and a place to which the family will happily return for many decades to come.





















