Storrs House by Tim Stewart Architects
Located in Queensland, Australia, this contemporary single family residence was completely redesigned by Tim Stewart Architects.















Description by Tim Stewart Architects
The 18 hectare site has had a life that has ebbed and flowed with the life of the family who have owned it for almost 30 years. Developed from the ground up into a small orchard by a growing family, the farm is now retreating back to its natural form as the owners also wind down in retirement.
The original home was subdivided and sold many years ago whilst the family pursued a different chapter of their lives; the opportunity for a new home presented a chance to reflect the changing values and lifestyle of the client. With their field of reference reducing with age the home aims to reflect in miniature the site as a whole and its history. Located on the site of the original water tanks which supplied irrigation to the orchard and water to the first home the house is now the new epicentre of the property.
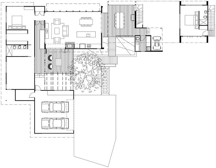
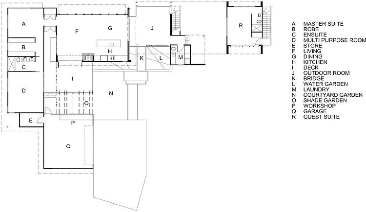
On the site exists a large dam which was once the centre of entertainment for the children and the provider of water to the fruit trees. The new home is entered across a large dam fed pond to the outdoor room which takes in the striking views that are a feature of the site. The rest of the house then wraps around a courtyard garden, the same interest that once led to the development of an orchard now tender a garden which whilst decorative can easily surprise with random appearances of tomatoes, herbs and other vegetables.
All the elements of the home, living, working, workshop, relaxing engage with both the garden and the view. Slowly the elements of the original property are making their way closer to the house, with more and more food providing plants becoming an integral part of the garden, also reflecting the more self sufficient lifestyle of the client.
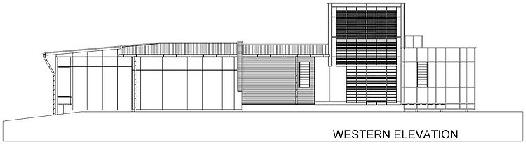
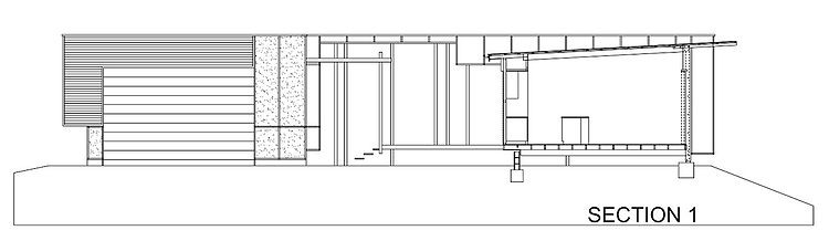
The home itself is far more environmentally conscious than it predecessor, with low energy lighting predominant, solar water heating, over 60 000 litres of water storage, and built with timber taken from the site and from fire breaks cut through the bushland. The timber was milled and finished on site and makes up all of the exposed timber as well as the flooring and much of the sub structure. The house is a reflection in miniature of the workings, life, and history of the farm and the family that continue to enjoy its offerings.



























