Kezmarska Hut by Atelier 8000
ATELIER 8000 participated in the international architectural competition for a new Kežmarská chata (the Kežmarská Hut) in the High Tatras, Slovakia.






Description by Atelier 8000
The competition entry developed by our studio proposes a succinct shape of a simple cube which is seated on one of its vertices and aims at inducing a feeling of lightness and randomness in the observer. Due to its position within the landscape the cuboid evokes an erratic block left behind by the retreating glacier. In the context of mountain peaks the sharp edges of the building merge into the outline of the neighbouring rocks when viewed from distance and thus naturally join the landscape of the site.
Thanks to the positioning of the construction, three sides of the facade are visible from any viewing point, which amplifies the play of light and shadows – the same effect which can be observed on the neighbouring rocks. The glass surfaces of windows and photovoltaic panels along with the light transparency of the metal plating complete the whole picture of the site with a touch of glimmer – just like the glints and reflections which can be observed on the surface of a mountain lake or on thawing ice.
The construction is built with glued laminated timber beams made from larch wood.
The aluminium facade system is designed in the form of square panels. The dimensions of the individual elements of the facade are designed in the module of 1x1m to facilitate easy handling and transport to the building site.
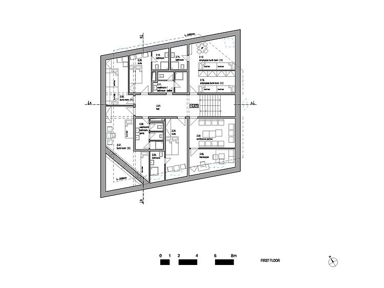
Function of the individual floors:
Underground floor – garage for the snowmobile, staff entrance, ski storage, drying room, boots + backpacks, restaurant restrooms, technologies
Ground floor – restaurant, deck
1st -2nd floor – accommodation
attic – sleeping accommodation for emergency needs, meditation room
Energy
The design of the individual technical facilities of the building aims at meeting the demanding targets of energy sustainability of the hut. In terms of its energy generation and consumption the hut has been developed as a passive building.
The shape and orientation of the hut are adapted to utilise the solar energy to the maximum possible extent. The parts of the facade with energy generation units are oriented southwards and eastwards and face the sunrays directly. Therefore, the solar energy is fully utilised via the photovoltaic panels, thermal solar collectors, and also by direct solar gains through the glazing of the windows.
Thanks to the very low thermal losses the heating of the hut is fully ensured by the air distribution systems. The air (fresh, circulating) is heated by an air handling unit with the heat recovery of min. 85%. The thermal energy is accumulated in heating water tanks. The lounge features a wood-burning fireplace for atmosphere-inducing heating with the possibility of heat accumulation.
Regulation: A highly sophisticated regulation system facilitates optimum management of the operation of individual devices based on the collected data (climatic data incl. forecasts, occupancy rate of the hut, data from temperature sensors and consumption meters, state of the accumulation etc.) as well as predictions of utilisation of the hut in the nearest future.

































