Residence in NHA Trang by Vo Trong Nghia Architects
This amazing green residence located in NHA Trang, Vietnam, was designed by Vo Trong Nghia Architects & ICADA.









Description by Vo Trong Nghia Architects
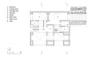
The house is located in Nha Trang, a city in central Vietnam surrounded by the beautiful ocean and mountains. The client wanted a large house with a large garden. Answering to this request, a single roof is designed as a hanging garden to plant numerous trees and plants on it. The local building code, however, requires almost 50% of the roof area to be covered by gray or orange-color tilings and to be sloped. To obey this rule but maximize the green area atop, the roof is divided into parallel bands of greened roofs and tiled roofs in an alternating sequence.
The interior spaces of the house are structured by this system of parallel bands. Under the tiled roof are the living, dining and bed rooms, while service spaces, such as bathrooms, storages and circulation spaces, are located under the greened roof, where the ceiling height are limited because of the deep soil layers for trees atop. A void and three patios are designed within the system of bands to enhance natural lighting and ventilation.
The house is one of the latest variations of the serial house project called ‘house for trees’. The large single roof is departing from the scale of private house. It is more like an infrastructure or a pocket park open to the neighbors. Gently sloped, this roof-landscape is visually connected to the surrounded mountains. In the shadow of trees, the residents can enjoy the views and spend their life with full of greenery.
Photography by Hiroyuki Oki
Visit Vo Trong Nghia Architects
- by Matt Watts













