Casa Capoluongo by Fadd Architects
Casa Capoluongo is an elegant apartment located in Naples, Italy, designed in 2021 by Fadd Architects.



-->



-->



Description
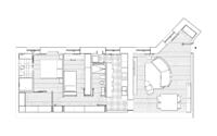
Formerly an office space, the 100 sqm apartment is completely redesigned for a young couple with a child.
In addition to the large living area and kitchen, there is a master bedroom with bathroom, a bedroom and a bathroom.
The view on the large courtyard ensures complete quietness to the whole apartment, while the large windows of the living room ensure a diffused lighting that brings out the wood paneling and oak parquet chevron cut of the living area.
Photography courtesy of Fadd Architects
- by Matt Watts









