Campeche 211 by Parás+ Izquierdo Architecture
Campeche 211 is a contemporary house influenced by Mexican architecture in Mexico City, Mexico, designed in 2021 by Parás+ Izquierdo Architecture.













Description
Restoration and remodeling project of a house for a young couple in the Hipódromo Condesa neighborhood. The main premises of the proposal consisted in solving the needs of the clients, enabling social, work and rest spaces inside an old house that needed to adapt to the necessities of a family of the twenty first century. Moreover, a desire to create an esthetic space that spoke a contemporary language, with a clear Mexican influence. It was opted to use stone materials often used in Mexican architecture but presented in innovative formats.
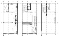
The project scheme can be understood in a vertical way; the spatial and programmatic relationships are a series of overlapping layers unified by circulations that generate a dialog between public and private.
Photography by Enrique R. Aguilar
Visit Parás+ Izquierdo Architecture
- by Matt Watts
















