Baan Moom Residence by Integrated Field
Modern minimalist house designed by Integrated Field for a family of five located in Bangkok, Thailand.

























Description by Integrated Field
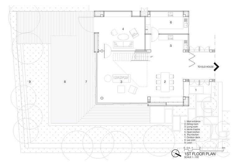
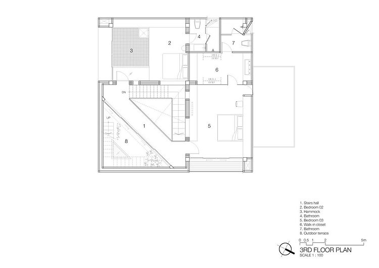
This house for a family of five is located on Sukhumvit Rd., Soi 101/1, next to their old house where they had been living since long time ago. According to the scale of the site and owner’s love of nature, open space, and gardening give an initial idea for this house design. All functions are packed and stacked into 3-storeys to provide the most open space possible on the ground level. Functional usages are one master bedroom with master bathroom for parents, 2 bedrooms and 2 bathrooms for sons, a living/dining space, a working room, an open kitchen, a Thai kitchen and a lap pool.
The house was positioned on the southwest part of the site. All bathrooms are on the west part on each floor of the house to protect all other functions from the sunlight during daylight hours, and for the hygienic reason of the bathroom as well. With the bathroom on the west, each bedroom can face either north or east for the proper quality of natural light, and left the court on the ground level in L-shaped.
Two main characters those most likely to be found in this house are the ‘stairs hall’ and ‘corners’ on each floor.
This stairs hall consists of the triangular staircase, the triangular skylight on the rooftop and internal voids for every room. The skylight provides the natural light throughout stairs hall and even for the living space on the first floor, internal voids provides the ventilation for each room and also the visual connection for family members, and of course, this stairs hall acts as the main vertical circulation for this house.
There’re 2 types of corners in this house, ‘individual’ and ‘shared’. Individual ones became bedrooms those reflect the character of each family member, and shared ones became open spaces connected to stairs hall on each floor for different family usage, such as living space on the first floor that connect to the deck and lap pool outside, the multipurpose family space on the second floor and the terrace that leads to the rooftop of the house.
Materials to be mentioned are steel frame, insulated glass and fishnet from the ocean liner. Steel window/door frames are mostly used to create smaller profile and make door sets look the most disappeared, especially for the set of sliding doors at the corner of the living room that can be slid all the way into walls on the both side and give the continuity of space from living room to the open space outside. Insulated glass helps skylight not to let the heat into the house too much. Fishnet used in the ocean liner was selected to be used as a hammock in the double space between working room(2nd floor) and the bedroom (3rd floor).








































