Sessa Residence by Jones, Partners: Architecture
This modern cliffhanger dwelling situated in Los Angeles, California, was redesigned in 2012 by Jones, Partners: Architecture.



-->



-->



Description by Jones, Partners: Architecture
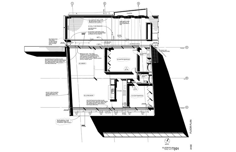
SITE: Steeply sloping graded sidehill lot off private cul-de-sac in Nichols Canyon.
PROGRAM: Remodel and rehab of existing 1961 contractor-designed cliffhanger dwelling, to highlight the disciplinary logic and formal rigor implicit in the original unschooled effort, including shoring and leveling of the woefully sagging structure, cleaning out of inappropriate architectural clutter and provision of new continuous glazing, roof and yard areas.




Visit Jones, Partners: Architecture
- by Matt Watts











