Baan Yo Yen by TA-CHA Design
Situated in Nonthaburi, Thailand, this modern 4,843 square foot residence was designed in 2013 by TA-CHA Design.














Description by TA-CHA Design
In relation to a lot of research especially interview with the owner, our design intent has been interpreted as a simple but powerful word in Thai ‘Chan’ (Literally means terrace) However, ‘Chan’ back to history of Thailand is incredibly meaningful as connection. As stated, ‘Chan’ connects people with people (Three generation living in the same house) ‘Chan’ links people with nature (Friend of nature) ‘Chan’ joins people with surrounding (Internal space interact with adjacent neighbor while maintaining privacy.)
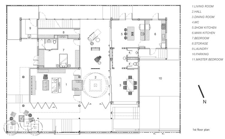
Space planning has been adapted from traditional Thai residential architecture. The advantages of the spirit of traditional Thai house are to be retained to suit modern lifestyle such as sustainable strategies – the stack effect to move hot air up and out of the home by drawing cool air in through the ground floor (center of the house) – daylighting thru skylight in the middle of the house. This makes an indirect connection with environment
In order to eliminate theheat gainfrom south, a main staircase in the back of the house acts as the heat barrier as well as the exterior enclosure using double wall system with insulation to prevent heat entering to the living space.
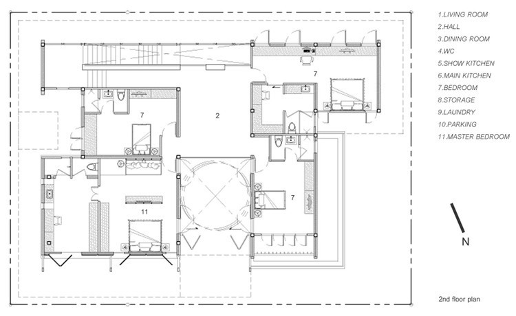
The lower floor holds living room; semi-open to the environment, dining room, kitchen and guest bedroom. Again, there is ‘Chan’ connecting each area altogether with big tree in the middle. The upper floor holds four bedrooms linking by the upper ‘Chan’ and sensing top of tree movement. One of the key elements is the main steel seven meter high entry door connecting and dividing up internal and external spaces with proper natural ventilationand daylighting.





















