Boatsheds by Strachan Group Architects & Rachael Rush
Contemporary residential project designed by Strachan Group Architects & Rachael Rush situated in Auckland, New Zealand.



















Description by Strachan Group Architects & Rachael Rush
Context
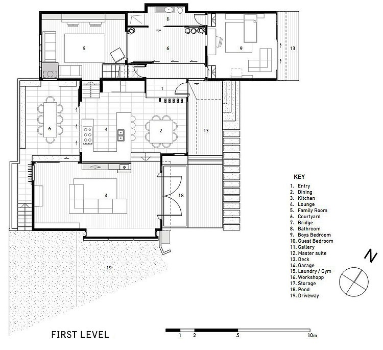
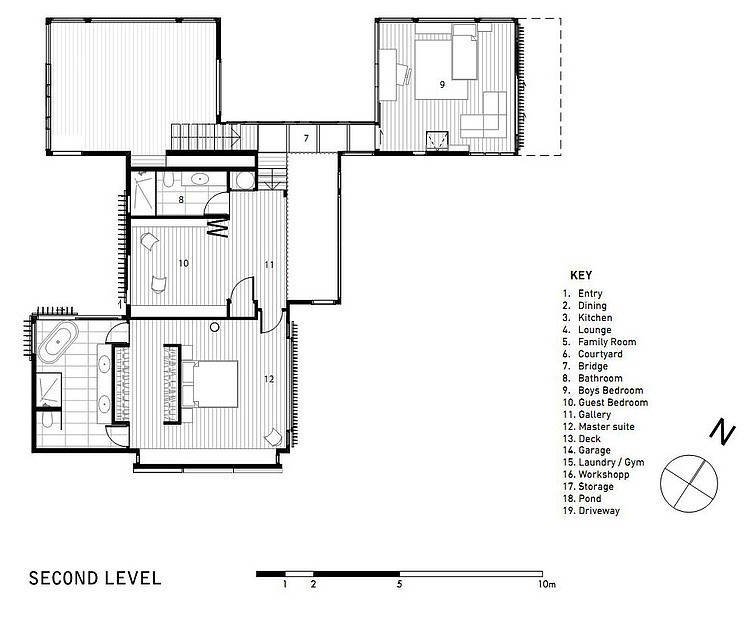
On a constrained, compact urban site, a stones throw from Takapuna Beach, the three-stepped gables of these black ‘boatsheds’ appropriately reference our boating and beach culture. The sliding forms reveal a solution beyond the standard connotations of a home, a bespoke incubator for the clients’ lifestyle.
The corner site, challenged by two 5m (16.4 ft) front yards and the blunt presence of a three-storey neighbour hard on the North-West boundary, stimulated an approach of layered complexity with ample transparency to capture light, sun and glimpses of the pohutukawa and baiting ocean.
Design
Simplicity of the exterior form is contrasted by the highly crafted timber interior, exhibiting the skilled artistry of the builder. A diverse succession of multi-connected spaces create a threaded flow of movement, whilst each maintains a distinct and sequestered quality.
The house opens and closes in response to shifts in weather and programme, with walls that lift, fall, slide, fold, shut down or disappear. This is a house with intent to engage the viewer, the viewed and the operator with sense and intrigue.







Visit Strachan Group Architects
- by Matt Watts

























