Courtyard House by Alao
Unveiling a hidden gem in Manila, Philippines, the Courtyard House, a marvel of modern architecture and interior design. This captivating two-story house was elegantly redesigned in 2013 by renowned designer, Alao. Ensconced in a city known for its rich cultural heritage, the Courtyard House offers a serene and stylish escape from the bustling streets, showcasing the brilliance of modern design elements in a traditional setting.
Join us as we journey into this unique property and discover the blend of beauty, sophistication, and creativity that makes it a standout!








About Courtyard House
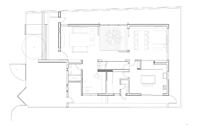
Oriented in toward the central double height interior space and exterior courtyard, this live-work home is organized with private and public areas separated by a central spine. Visual connections allow for a flow of light and air, and for living spaces of the house to connect.
Photography courtesy of Alao
- by Matt Watts









