Encinos House by Ricardo Yslas Gámez Arquitectos
Encinos House is lovely concrete residence located at the outskirts of Mexico City, designed in 2017 by Ricardo Yslas Gámez Arquitectos.










Description
Encinos House consist into a single-family house, which is located at the outskirts of Mexico City, inside in a private residential complex. Our premise was to create a habitable space surrounded by a vast vegetation, while inside, we created a natural and elegant environment, that stands out by the use of exposed and natural materials, in combination with daylight entrance and furniture integration.
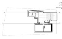
The program is divided clearly 2 main areas -the public areas are located in ground floor, and most of the private areas take place on upper floor- those spaces are placed around a central-interior patio. This lobby is dominated by a huge concrete cube that frames the presence of the Magnolia and is filled of zenith light.
At the end of the patio, aligned with the floating concrete structure, is a fireplace from whose centre an inverted pyramid emerges and receives the flame. The fireplace works as a link between the living room, the dinner and the patio itself, communicating those three spaces at the same time, but subtly dividing them.
Both the interior patio and the corridors integrate on top a wooden pergola, which creates in interesting play of shadows according the passage of light.
The house is formed by two L-shape volumes, connected by two small brides. These elements also connect the private spaces, one of them crossing above a fern garden, while in the other side, the second bridge cross through a water mirror from which emerges a tree. Those garden areas allow the crossed ventilation to the inside and give interesting views towards the outside.
The main materials are wood, stone labs and exposed concrete marked with wooden texture. By combining these elements, we create different light and shadow effects, that give the house a cozy atmosphere, according to its wooded surroundings.
Photography courtesy of Ricardo Yslas Gámez Arquitectos
Visit Ricardo Yslas Gámez Arquitectos
- by Matt Watts













