Bosque da Ribeira Residence by Anastasia Arquitetos
Bosque da Ribeira Residence is situated in a residential neighbourhood in Nova Lima, a city near Belo Horizonte – Brazil – with built area of 650 square meters.

















Description by Anastasia Arquitetos
The residence is at the limit of an allotment, adjacent to an environmental reserve. Thus the residence seeks to create a visual interface and harmonious deployment with the environment, taking full advantage of covered of the forest and featuring a staggered volumetry, decreasing the higher volumes observed in the street. The landscaping designed for the residence complements the relationship with the forest.
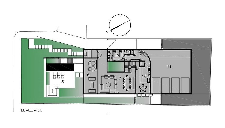
The leisure area, swimming pool and terrace are focused on the landscape, with privacy preserved by the slope, and, as well as the social area, are covered. To protect it from sunstroke north, coincident with sight, we created a balcony with two levels of coverage, to light up the room without direct solar irradiation, and zenithal illumination protected by wooden pergolado in the lounge.
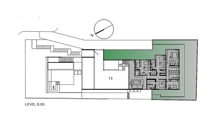
The house is organized as follows: sauna and rest at street level (basement), social area on the ground floor, 4 meters higher than the street, and private areas on the second floor.
























