Tribeca Loft by Aaron Schump
A complete renovation of a 10th storey loft situated in the Tribeca neighborhood of New York City, United States.



-->



-->



Description by Aaron Schump
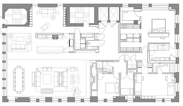
Extensive glazing on three facades made for a design challenge. A bar of walnut housing the kitchen and service areas organizes the plan. Bedrooms were pushed to the south and west, leaving the north-west corner free for entreating and unobstructed views of the Hudson river. Aaron Schump served as project manager at SPaN overseeing the entire project from design to construction administration.










