Thao Dien House by MM ++ Architects
Contemporary villa designed in 2014 by MM ++ Architects situated in an eastern suburb of Ho Chi Minh City, Vietnam.















Description by MM ++ Architects
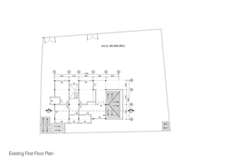
This project is a renovation of a villa located in east suburb of Ho Chi Minh City, District 2.
The intention was to turn the existing construction, a “pastiche” art deco, into a contemporary villa with clean lines and open spaces while keeping the entire existing concrete structure.
The cost saving, which represents around 30% of total construction cost and the time saving on the construction schedule was a huge benefit for the client, an investor. Therefore, with balancing the cost, it was possible to add new elements to the construction.
– The building has been reduced to his most minimal expression, a white cubic shape with two vertical vegetal walls added on the front and back of the house in order to bring privacy for the bedrooms and allowing large openings for natural ventilation without crossing views.
– The vertical garden “extends” the surrounding vegetation onto the walls and makes the house “disappearing” into the landscape. It creates a strong visual connection between the house and the garden and gives an identity to the place.
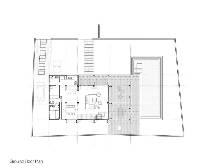
– On the ground floor, living room, dining and kitchen are merged in one unique space fully open to the outdoor on three sides, bringing the garden inside the house. Swimming pool and decking have been reshaped as an extension of the interior space. The staircase has been relocated for a better distribution of the first floor and creates the main feature of the living room with a floating steps design.
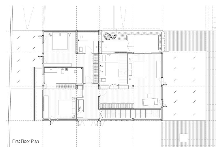
– On the first floor, three bedrooms instead of the four existing in order to gain space to create a real master suite.
Starting from a poor existing space quality, enclosed, with no connection to the garden, this project is an experiment to demonstrate how it can be versatile and fun to “play” with an existing structure and to turn the construction into a radically different layout and design, revealing better spaces, adding value to the place and proposing a life style closer to nature.






























